A86_Vestavba RD Česká Třebová
A86_Vestavba RD Česká Třebová
Datum: 30.07.2014
Kategorie: Rodinné domy
název: A86_Vestavba RD Česká Třebová
místo: Kubelkova, Česká Třebová
stupeň: STS, DSP, DPS, Realizace
datum: 07/2014 - 02/2015
firma: KULŠTEJN s.r.o.
investiční náklady: 1.200.000,-Kč
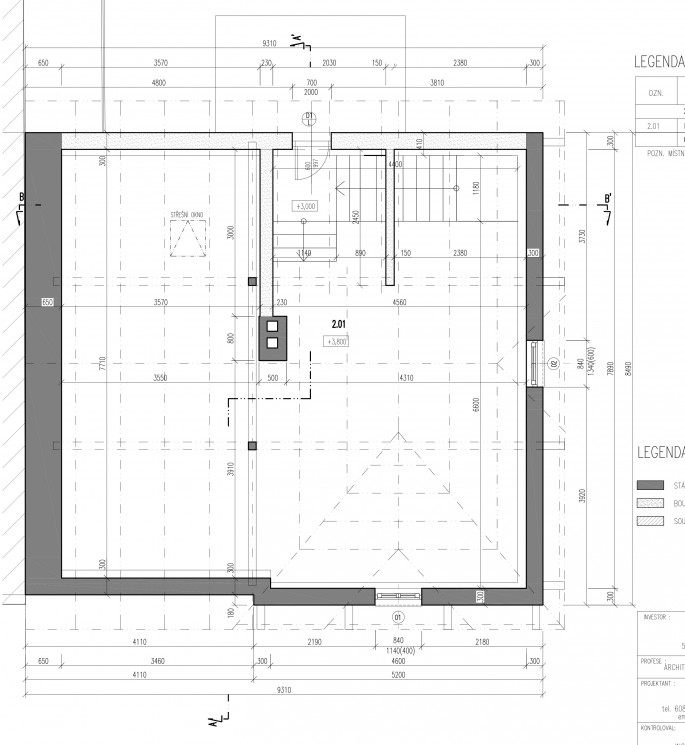
Půdní prostor má celokovou hrubou podlažní plochu přibližně 56m2. Na daném prostoru byla navržena bytové jednotka se vstupní chodbou s úůožnm prostorem, samostatnou koupelnou s wc, obytným prostorem s kuchyňským koutem, samostatnou ložnicí a ještě samostatným prostorem pro využití např. jako pracovny či alkovny..
celkové řešení maximálně vytěžilo daný poměrně stísněný prostor a nabídlo tak bydlení pro mladý pár, přípandně starovací bydlení pro mladou rodinu.
připravované projekty 2017
Pro rok 2017 máme rozpracovaných 14 projektů, z nichž 12 je připravováno k realizaci naší stavební firmou. Jedná se o 7 rodinných domů, 3 půdní vestavby a 2 veřejné stavby.
Aktuálně pracujeme na všech 14 projektech, z nich je 7 v procesu satvebního řízení a zbývajících 7 projektů bude podáno do konce března. Včech 14 projektů by mělo získat stavební povolení nejpozději do konce června 2017.
Dále je připravován větší developerský projekt, který se připravuje na pozemku velikosti 10tis.kč m2 a měl by být realizován v následujících .... [pokračování]
Zpět na rozcestník




